Podstawy
- Rodzaj : Dom
- Kategoria: Na sprzedaż
- Powierzchnia użytkowa: 146 m²
- Powierzchnia całkowita, m²: 213
- Powierzchnia działki: 600 m²
- Sypialnie: 4
- Łazienki: 2
- Rok budowy : 2025
Opis
-
Opis
:
Dom wolnostojący z garażem w Krakowie, o powierzchni użytkowej 145,61 m2, położony na ok. 6 arowej działce w okolicy Kąpieliska Przylasek Rusiecki, nieopodal ul. Brzeskiej. Sprzedaż w stanie surowym zamkniętym. Dom realizowany według projektu Archon "Dom w zdrojówkach 8".
Brak podatku PCC. Brak prowizji.
Dostępne są 2 domy.Na powierzchnię domu składa się:
parter:
- Wiatrołap: 5,12 m2
- Hol: 2,66 m2
- Toaleta: 2,86 m2
- Salon + Jadalnia: 31,97 m2
- Kuchnia: 8,80 m2
- Spiżarnia: 1,82 m2
- Kotłownia: 4,39 m2
- Garaż: 18,97 m2
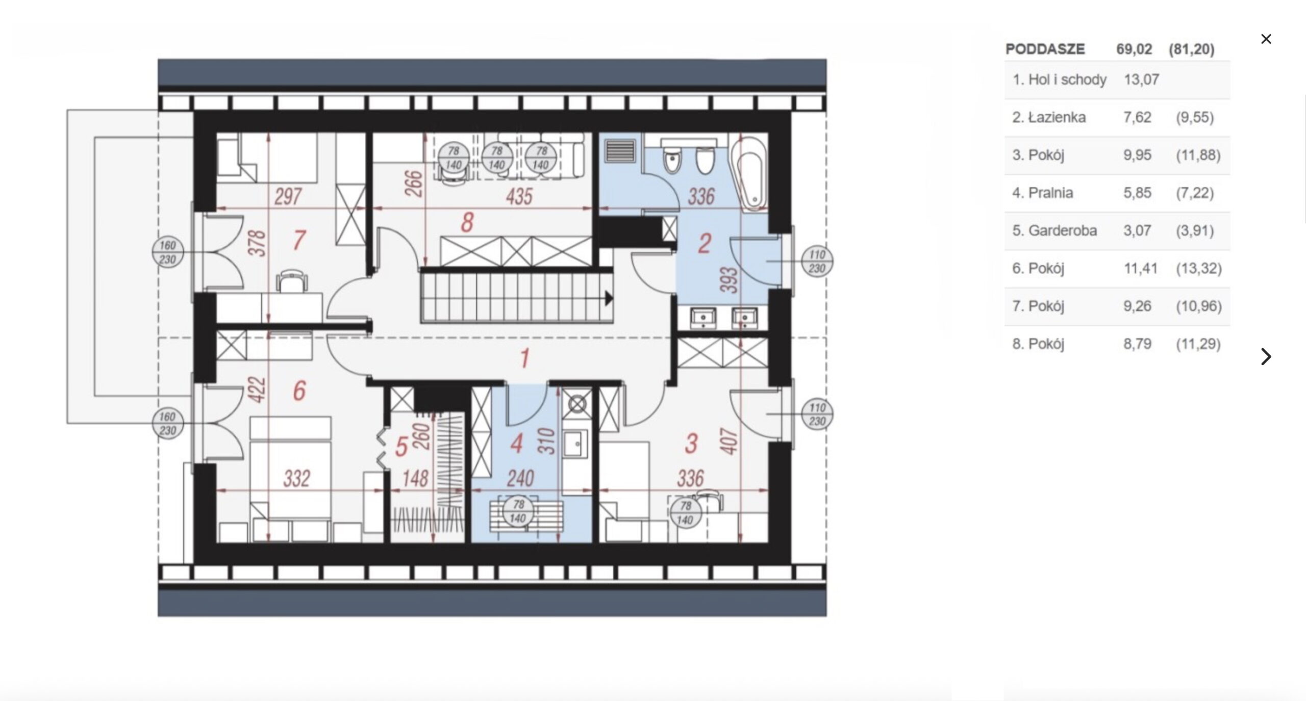
poddasze:
- Hol i schody: 13,07 m2
- Łazienka: 7,62 m2
- Pokój: 9,95 m2
- Pralnia: 5,85 m2
- Garderoba: 3,07 m2
- Pokój: 11,41 m2
- Pokój : 9,26 m2
- Pokój: 8,79 m2
Dojazd drogą utwardzoną z drogi asfaltowej.
Ogrzewanie: projekt przewiduje kocioł na paliwo stałe lub gazowe.
Lokalizacja:
Domy znajdują się w spokojnej i zielonej okolicy z dobrym dojazdem do centrum Krakowa oraz Niepołomic. W okolicy znajdują się sklepy, kąpielisko, przychodnia, restauracje, przedszkole, szkoła, place zabaw. Łatwy i szybki dostęp do drogi krajowej 79 oraz autostrady A4.Odległości:
- przystanek komunikacji miejskiej ok 200 m,
- przychodnia NZOZ: ok 1 km,
- zbiornik wodny "Przylasek rusiecki": ok. 5 km,
- przedszkole: 600 m,
- szkoła podstawowa: ok. 1,7 km
- plac zabaw: 500 m,
- Biedronka, Media Expert, Pepco, Mrówka: ok. 2,6 km,
- Stacja paliw: 2,5 km,
- Niepołomice: ok.4 km,Budowa trwa. Sprzedaż w stanie surowym zamkniętym w cenie ofertowej.
Możliwość doprowadzenia do stanu deweloperskiego. Cena do indywidualnego ustalenia.Osoby zainteresowane zapraszam po więcej szczegółów oraz do obejrzenia.
Pokaż cały opis
+48 732 002 999
Lokalizacja
Szczegóły Budynku
- Garaże: 1
- Elewacja: Pustak ceramiczny
- Pokrycie dachu: Blacha
- Dojazd: Utwardzony
- Rodzaj okien: PCV
- Technologia budowlana: Tradycyjna
- Stan nieruchomości: Surowy zamknięty
Media
- Gaz: Tak
- Prąd: Tak
- Woda: Tak
- Kanalizacja: Realizacja we własnym zakresie
Wideo URL wideo
- Wideo URL wideo:
Plany pięter
- Plany pięter: