Podstawy
- Rodzaj : Dom
- Kategoria: Na sprzedaż
- Powierzchnia użytkowa: 89 m²
- Powierzchnia całkowita, m²: 135
- Powierzchnia działki: 660 m²
- Pokoje: 4
- Sypialnie: 3
- Łazienki: 1
- Cena za mkw : 3,676zł
- Rok budowy : 2025
- Kondygnacje: 2
Opis
-
Opis
:
Na sprzedaż dom o powierzchni 134,52 m² w stanie surowym zamkniętym, położony w malowniczym miejscu w otoczeniu panoramy górskiej, niespełna 25 km od ścisłego centrum Krakowa. To miejsce doskonałe dla osób, które chcą odetchnąć w zaciszu od miejskiego zgiełku, z zachowaniem szybkiego dostępu do centrum miasta.
Dom w budowie realizowany zgodnie z projektem "Dom w enkiantach (E) OZE" biura projektowego Archon. Planowane zakończenie budowy III kwartał 2025 r.
Sprzedaż bez podatku PCC i bez prowizji. Możliwa pomoc w kredytowaniu.
Powierzchnia działki: ok. 660 m²
Powierzchnia użytkowa: 89,36 m²
Powierzchnia całkowita: 134,52 m²
Na powierzchnię domu składa się:
parter (46,16 m²):
- Wiatrołap (4,18 m²)
- Kuchnia (7,07 m²)
- Salon + Jadalnia (27,52 m²)
- Toaleta (3,50 m²)
- Kotłownia (3,89 m²)
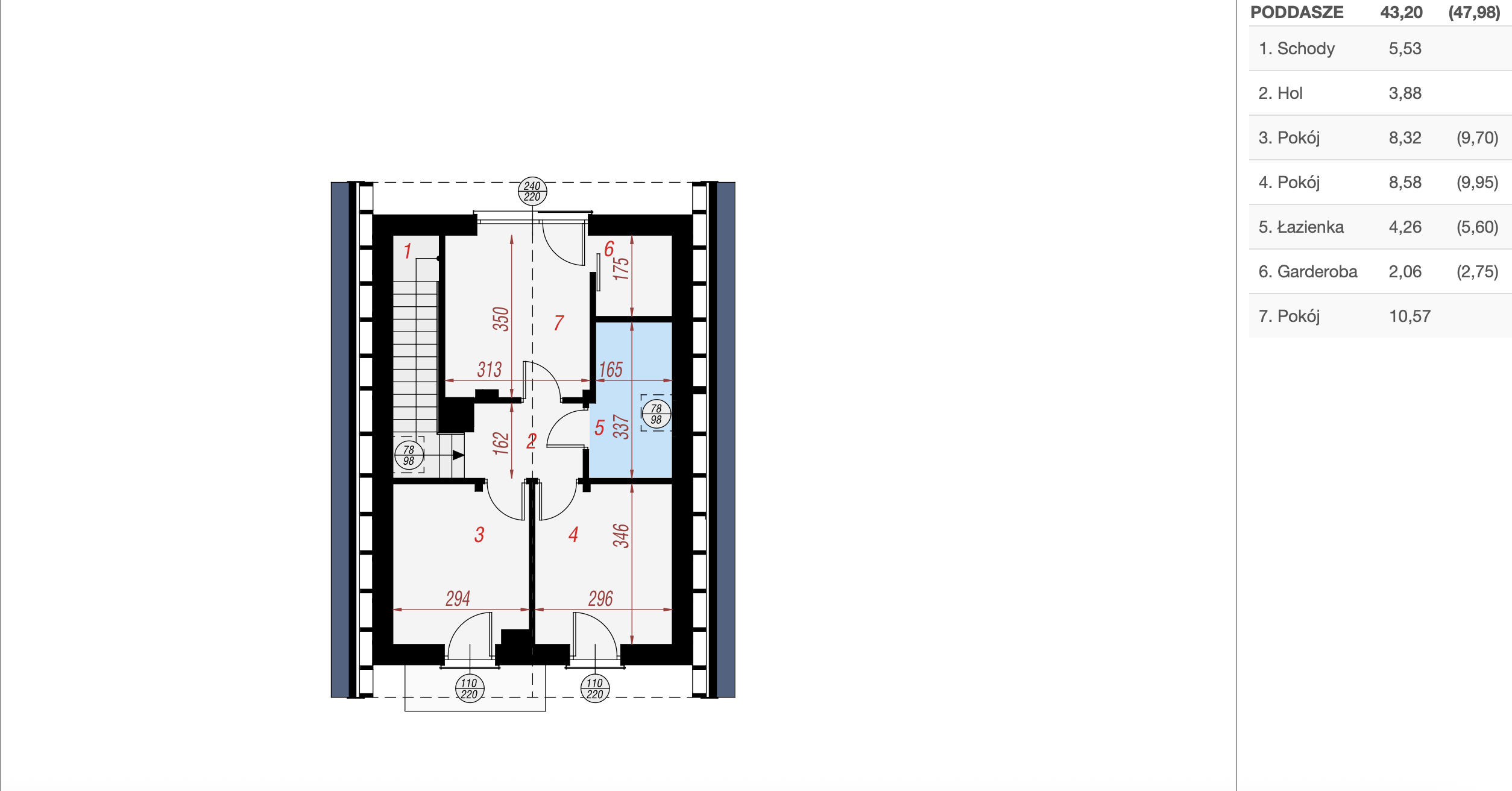
piętro (43,20 m²):
- Schody (5,53 m²)
- Hol (3,88 m²)
- Pokój (8,32 m²)
- Pokój (8,58 m²)
- Łazienka (4,26 m²)
- Garderoba (2,06 m²)
- Pokój (10,57 m²)
Budynek przygotowany pod rekuperację.
Dojazd drogą utwardzoną z drogi asfaltowej.
Podjazd, parking, opaska, taras - utwardzone.
Budynek ogrodzony (bez bramy wjazdowej)Projektowane ogrzewanie: pompa ciepła
Media: szambo 10m3, woda w budynku, prąd w budynku, Internet przy drodze
Lokalizacja:
w pobliżu znajdują się sklepy, szkoły, przedszkola, kościół i niezbędna infrastruktura. Szybki dojazd zarówno do dróg ekspresowych, jak i autostrady A4. Możliwość dojazdu środkami komunikacji publicznej (prywatni przewoźnicy) zarówno do Gdowa, jak i Wieliczki oraz Krakowa.
Odległości:
- szkoła podstawowa: 1,3 km
- boisko sportowe: 2 km
- sklep Żabka: 1,8 km
- sklep Biedronka: 4,5 km
- przystanek autobusowy: 450 m
- niepubliczne przedszkole: 2,8 km
- kościół katolicki: 1,7 km
- przychodnia: 2 km
- stacja paliw Orlen: 3,7 km
- Bank: 4,6 km
- Wieliczka: 11 km
- Kraków centrum: 25 km
- Gdów: 5 km
W sąsiedztwie trwa również budowa innych domów - dostępnych w sprzedaży.
Po więcej informacji zapraszam do kontaktu oraz obejrzenia.
+48 732 002 999
Pokaż cały opis
Lokalizacja
Szczegóły Budynku
- Ogrzewanie: Pompa ciepła
- Elewacja: Beton komórkowy
- Pokrycie dachu: Dachówka
- Dojazd: Utwardzony
- Parking: naziemny
- Technologia budowlana: Tradycyjna
- Stan nieruchomości: Surowy Zamknięty
Media
- Prąd: Tak
- Woda: Tak
- Kanalizacja: Szambo
Wideo URL wideo
- Wideo URL wideo:
Plany pięter
- Plany pięter: