Podstawy
- Rodzaj : Dom
- Kategoria: Na sprzedaż
- Powierzchnia użytkowa: 84 m²
- Powierzchnia całkowita, m²: 125
- Powierzchnia działki: 618 m²
- Piętro : 0
- Pokoje: 4
- Sypialnie: 3
- Łazienki: 1
- Cena za mkw : 3,680zł
- Rok budowy : 2025
- Kondygnacje: 2
Opis
-
Opis
:
Na sprzedaż dom o powierzchni 124,74 m² w stanie surowym zamkniętym, położony w malowniczym miejscu w otoczeniu panoramy górskiej, niespełna 25 km od ścisłego centrum Krakowa. To miejsce doskonałe dla osób, które chcą odetchnąć w zaciszu od miejskiego zgiełku, z zachowaniem szybkiego dostępu do centrum miasta.
Dom w budowie realizowany zgodnie z projektem "Dom w winogronach 8 (E) OZE" biura projektowego Archon. Planowane zakończenie budowy IV kwartał 2025 r.
Sprzedaż bez podatku PCC i bez prowizji. Możliwa pomoc w kredytowaniu.
Powierzchnia działki: 618 m²
Powierzchnia użytkowa: 83,66 m²
Powierzchnia całkowita: 124,74 m²
Na powierzchnię domu składa się:
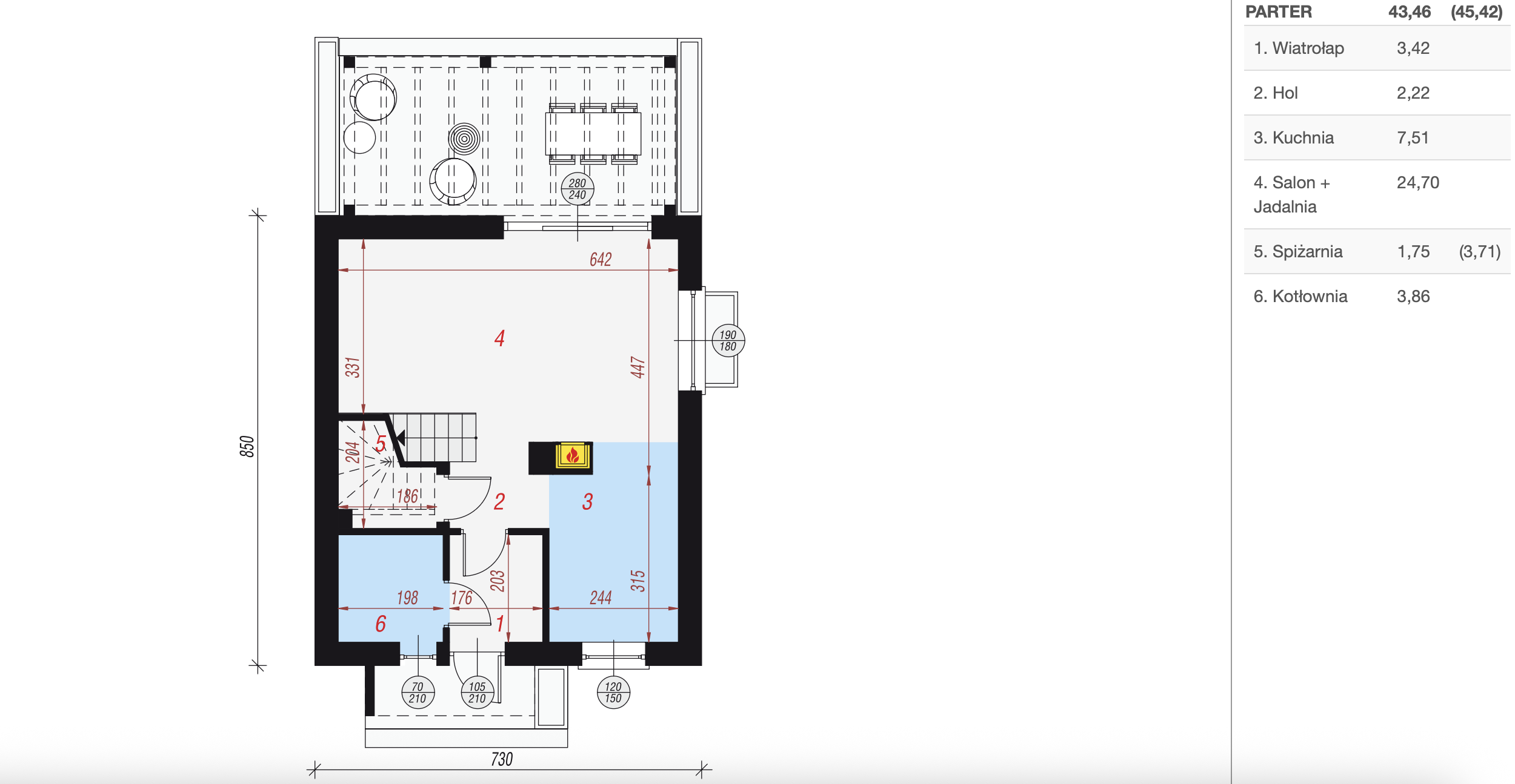
parter (43,46 m²):
- Wiatrołap (3,42 m²)
- Hol (2,22 m²)
- Kuchnia (7m51m²)
- Salon + Jadalnia (24,70m²)
- Spiżarnia (1,75 m²)
- Kotłownia (3,86 m²)
Poddasze (40,20 m²):
- Schody (3,85 m²)
- Korytarz (3,54 m²)
- Łazienka (6,80 m²)
- Pokój (8,41 m²)
- Pokój (8,56 m²)
- Pokój (9,04m²)
Budynek przygotowany pod rekuperację.
Dojazd drogą asfaltową. Wjazd bezśrednio z drogi.
Podjazd, parking, opaska, taras - utwardzone.
Budynek ogrodzony (bez bramy wjazdowej)Projektowane ogrzewanie: pompa ciepła
Media: szambo 10m3, woda w budynku, prąd w budynku, Internet przy drodze
Lokalizacja:
w pobliżu znajdują się sklepy, szkoły, przedszkola, kościół i niezbędna infrastruktura. Szybki dojazd zarówno do dróg ekspresowych, jak i autostrady A4. Możliwość dojazdu środkami komunikacji publicznej (prywatni przewoźnicy) zarówno do Gdowa, jak i Wieliczki oraz Krakowa.
Odległości:
- szkoła podstawowa: 1,3 km
- boisko sportowe: 2 km
- sklep Żabka: 1,8 km
- sklep Biedronka: 4,5 km
- przystanek autobusowy: 450 m
- niepubliczne przedszkole: 2,8 km
- kościół katolicki: 1,7 km
- przychodnia: 2 km
- stacja paliw Orlen: 3,7 km
- Bank: 4,6 km
- Wieliczka: 11 km
- Kraków centrum: 25 km
- Gdów: 5 km
W sąsiedztwie trwa również budowa innych domów - dostępnych w sprzedaży.
Po więcej informacji zapraszam do kontaktu oraz obejrzenia.
+48 732 002 999
Pokaż cały opis
Lokalizacja
Szczegóły Budynku
- Ogrzewanie: Pompa ciepła
- Elewacja: Beton komórkowy
- Pokrycie dachu: Dachówka
- Dojazd: Asfaltowy
- Parking: naziemny
- Technologia budowlana: Tradycyjna
- Stan nieruchomości: Surowy zamknięty
Media
- Prąd: Tak
- Woda: Tak
- Kanalizacja: Szambo
Wideo URL wideo
- Wideo URL wideo:
Plany pięter
- Plany pięter: