Dom z widokiem Sławkowice, małopolska
32-020 Sławkowice, PolskaPodstawy
- Rodzaj : Dom
- Kategoria: Na sprzedaż
- Powierzchnia użytkowa: 152.12 m²
- Powierzchnia całkowita, m²: 224,14
- Powierzchnia działki: 700 m²
- Pokoje: 5
- Sypialnie: 4
- Łazienki: 2
- Rok budowy : 2026
- Kondygnacje: 2
Opis
-
Opis
:
Na sprzedaż dom wolnostojący z garażem w bryle budynku, otoczony górską panoramą. Położony w miejscowości Sławkowice - 25 km od Krakowa. Miejsce dla osób poszukujących spokoju i wyciszenia z szybkim dostępem do udogodnień miasta.
Dom sprzedawany w stanie surowym otwartym, realizowany zgodnie z projektem „Dom w Jabłonkach 2” biura projektowego Archon. Dom w trakcie budowy, planowane zakończenie stanu surowego otwartego: II kwartał 2026 r.
Sprzedaż bez podatku PCC i bez prowizji. Możliwa pomoc w kredytowaniu.
Powierzchnia działki: ok. 700 m²
Powierzchnia użytkowa: 152,12 m²
Powierzchnia całkowita: 224,14 m²
Powierzchnia mieszkalna: 126,16 m²
Powierzchnia garażu i kotłowni: 25,96 m²
Na powierzchnię domu składa się:
Parter o powierzchni 81,05 m² (84,33 m²):
- Wiatrołap: 5,07 ²
- Salon + Jadalnia: 31,88 m² (34,56)
- Kuchnia: 11,02 m²
- Spiżarnia: 3,22 m²
- Łazienka: 3,90 m² (4,50 m²)
- Kotłownia: 7,51 m²
- Garaż: 18,45 m²
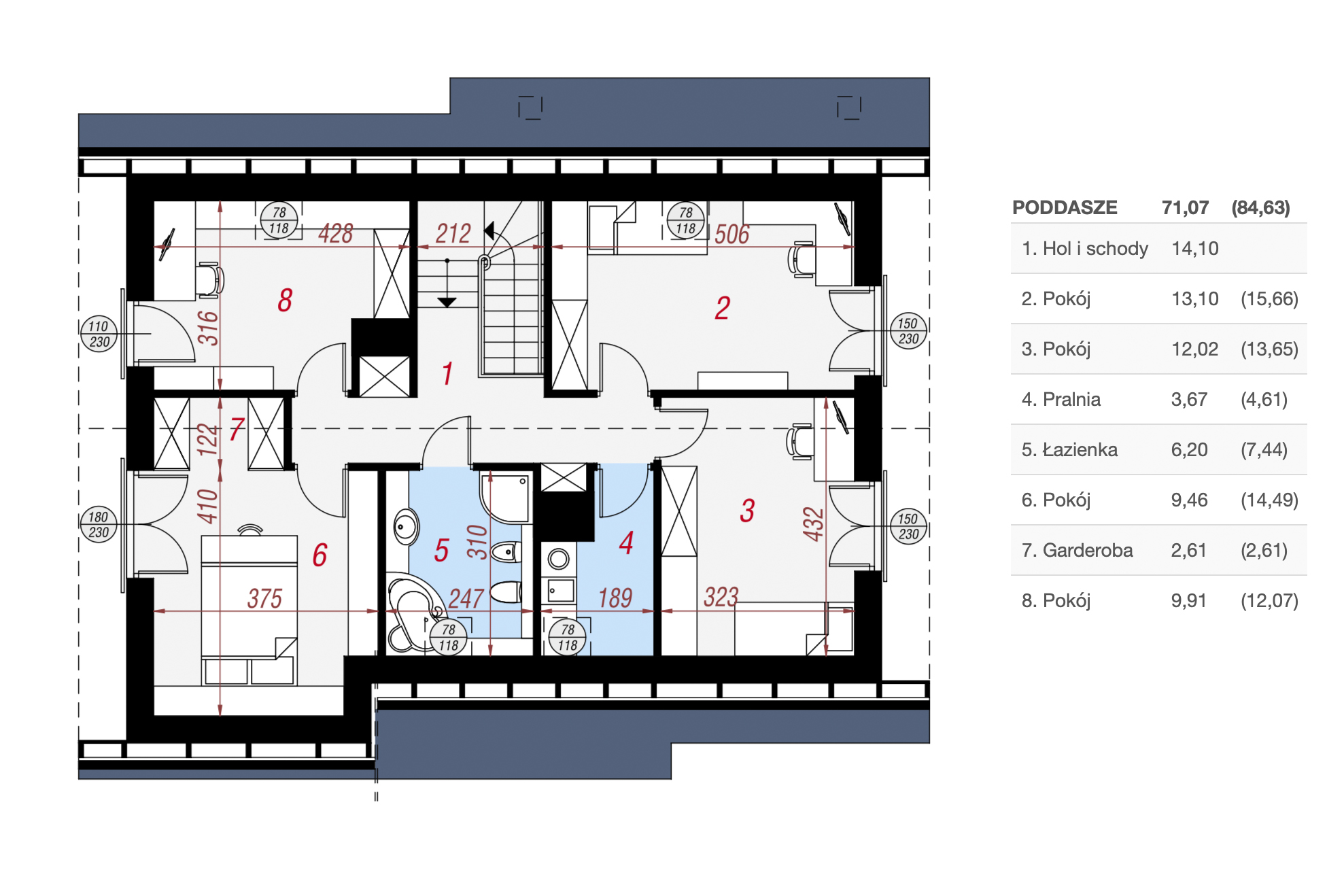
Poddasze o powierzchni 71,07 m² (84,63):
- Hol i schody: 14,10 m²
- Pokój 1: 13,10 m² (15,66 m²)
- Pokój 2: 12,02 m²(13,65 m²)
- Pralnia: 3,67 m² (4,61 m²)
- Łazienka: 6,20 m² (7,44 m²)
- Pokój 3: 9,46 m² (14,49 m²)
- Garderoba: 2,61 m² (2,61 m² )
- Pokój 4: 9,91 m²(12,07 m²)
Planowane ogrzewanie: gazowe
Media:
- prąd: w działce (skrzynka z licznikiem),
- gaz: wydane warunki przyłącza (gaz na działce),
- woda: w trakcie uzyskiwania warunków (sieć wodociągowa po drugiej stronie drogi),
- szambo (do realizacji we własnym zakresie)
Odległości:
- Stacja Paliw Orlen: 4km
- Szkoła podstawowa w Sławkowicach: 1,3 km
- Szkoła podstawowa w Bilczycach: 2,8 km
- Niepubliczne przedszkole: 2,9 km
- Boisko sportowe: 1,7 km
- Sklep spożywczy: 1,4 km
- Sklep „Żabka”: 3,8 km
- Sklep „Biedronka”: 4,6 km
- Paczkomat InPost: 1,4 km
- Ośrodek rekreacyjny „Kuter Port Nieznanowice”: 9,5 km
- Gdów: Centrum: 4,5 km
- Wieliczka Centrum: 12 km
- Kraków Rynek Główny: 28 km
Cena nieruchomości może ulec zmianie w zależności od daty nabycia. Ostateczne warunki ustalone zostaną indywidualnie z zainteresowanymi.
Po więcej informacji zapraszam do kontaktu oraz obejrzenia.
+48 732 002 999
Pokaż cały opis
Lokalizacja
Szczegóły Budynku
- Ogrzewanie: gazowe
- Garaże: 1
- Dojazd: droga asfaltowa
- Technologia budowlana: tradycyjna - pustak ceramiczny
- Stan nieruchomości: surowy otwarty
Media
- Gaz: jest
- Prąd: jest
- Woda: nie (wnioskowanie o warunki przyłącza)
- Kanalizacja: szambo
Plany pięter
- Plany pięter:
Udogodnienia i funkcje
- Udogodnienia:
- Cechy :