Dom Zabierzów Bocheński w otoczeniu Puszczy Niepołomickiej
Podstawy
- Rodzaj : Dom
- Kategoria: Na sprzedaż
- Powierzchnia użytkowa: 131 m²
- Powierzchnia całkowita, m²: 142
- Powierzchnia działki: 450 m²
- Sypialnie: 3
- Łazienki: 2
- Cena za mkw : 6,339zł
- Rok budowy : 2025
- Kondygnacje: 2
Opis
-
Opis
:
Energooszczędny dom wolnostojący z garażem w sąsiedztwie Puszczy Niepołomickiej o powierzchni użytkowej 131.06 m2, położony na ok. 4,5 arowej działce. Dom realizowany zgodnie z projektem fimy KB Projekt "Mniszków kod: DM-6545".
Brak podatku PCC, Brak prowizji od kupującego. Dostępne 2 domy.
Sprzedaż dotyczy stanu deweloperskiego, w tym:
- ogrzewanie podłogowe,
- utwardzenie podjazdu do domu (kostka brukowa),
- balustrady balkonowe (stal nierdzewna),
- zbiornik na deszczówkę (z odprowadzeniem wody),
- rolety antywłamaniowe.Na powierzchnię składa się:
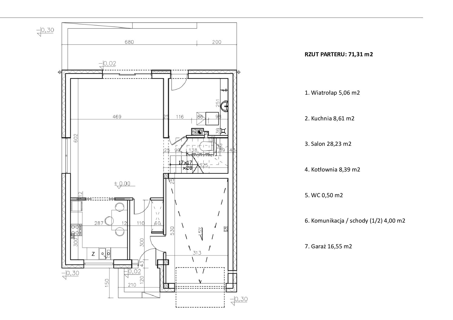
Parter:
- Wiatrołap 5,06 m2
- Kuchnia 8,61 m2
- Salon 28,23 m2
- Kotłownia 8,39 m2
- WC 0,50 m2
- Komunikacja / schody (1/2) 4,00 m2
- Garaż 16,55 m2
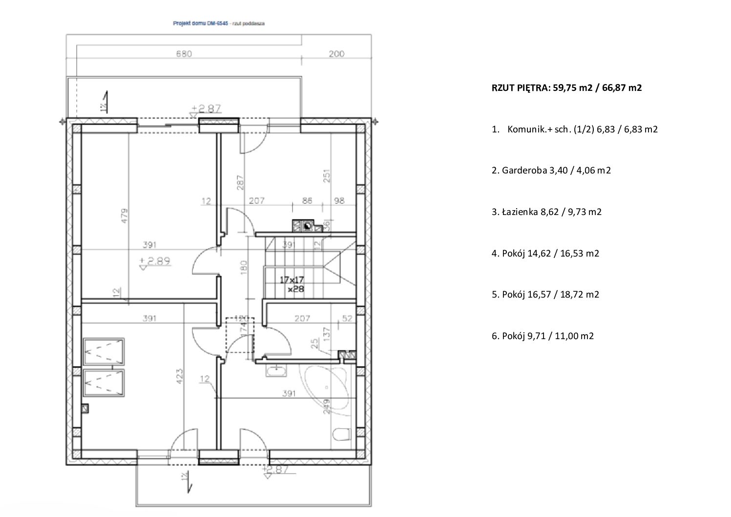
Piętro:
- Komunik.+ sch. (1/2) 6,83 / 6,83 m2
- Garderoba 3,40 m2
- Łazienka 8,62 m2
- Pokój 14,62 m2
- Pokój 16,57 m2
- Pokój 9,71 m2
Dojazd drogą utwardzoną z drogi asfaltowej
Media:
Prąd, woda, szambo, dostępny będzie gaz (wykonywanie przyłącza).Ogrzewanie:
Podłogowe (parter, piętro),pompa ciepła AUX 10kw. + fotowoltaika lub piec gazowy dwufunkcyjny.
Wykończenie:
Stan deweloperski
Docieplenie budynku: styropian
Docieplenie dachu: wełnaLokalizacja:
Domy znajdują się w malowniczej, zielonej i spokojnej okolicy z łatwym dostępem do niezbędnej infrastruktury. W najbliższej okolicy znajdują się sklepy, przychodnia, łowisko, kąpielisko, straż pożarna, kościół, restauracje, dom kultury, przedszkole i szkoła. Lokalizacja zapewnia szybki dostęp do drogi krajowej 79 oraz autostrady A4 (ok.15 km). Ok 30 min od Krakowa.W pobliżu:
- łowisko/kąpielisko "Bobrowe rozlewisko": ok. 500 m,
- sklep spożywczy: ok. 500 m,
- przychodnia: ok. 2 km,
- kościół: ok. 600 m,
- szkoła: ok 2 km,
- przedszkole: ok. 2 km,
- Niepołomice: ok. 10 km,
- Kraków: ok. 35 km,Link do spaceru po wizualizacji:
https://kbprojekt.sensevr.pl/apartment-hidden/3587?button=walk&apartmentId=3587
Osoby zainteresowane zapraszam po więcej szczegółów oraz obejrzenia nieruchomości.
+48 732 002 999
Pokaż cały opis
Lokalizacja
Szczegóły Budynku
- Garaże: 1
- Dojazd: Droga utwardzona
- Rodzaj okien: PCV
- Technologia budowlana: Tradycyjna
- Stan nieruchomości: Deweloperski
Media
- Gaz: W trakcie realizacji
- Prąd: Tak
- Woda: Tak
- Kanalizacja: Szambo
Wideo URL wideo
- Wideo URL wideo:
Plany pięter
- Plany pięter:
Udogodnienia i funkcje
- Udogodnienia: